Сепаратор песка
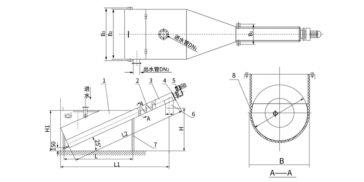
Сепаратор песка и воды пригоден для удаления песка в отстойниках на муниципальных очистных сооружениях. В основном он используется совместно с циклонными отстойниками, машинами для удаления песка или мостовыми всасывающими пескосборниками для дальнейшей обработки сбрасываемой песчано-водной смеси.
English
русский 












